
Imagínate vivir a pasos del mar, en una de las zonas más exclusivas y residenciales de Montevideo, donde la tranquilidad del entorno verde se combina con la cercanía a todos los servicios.
M8 Punta Gorda nace sobre Av. Gallinal, a pasos de la Rambla, en un punto estratégico que permite disfrutar del aire, las caminatas frente al mar y, al mismo tiempo, contar con excelente conectividad, comercios y propuestas gastronómicas a pocos minutos.
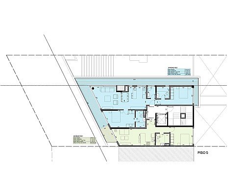
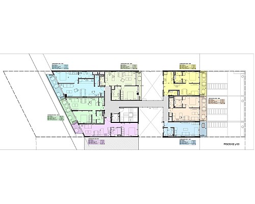
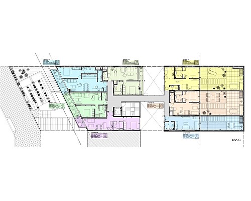
El proyecto está conformado por 27 apartamentos de monoambiente, 1 y 2 dormitorios, diseñados para quienes buscan calidad de vida, confort y una inversión con proyección. Todas las unidades cuentan con terrazas, gran asoleamiento y vistas abiertas hacia la Rambla y al Molino de Pérez, generando una sensación permanente de amplitud y conexión con el entorno.
Su arquitectura contemporánea se desarrolla en dos bloques que respetan la escala residencial del barrio, priorizando privacidad, visuales largas y una integración natural con el paisaje.
Vivir en M8 es disfrutar de espacios pensados para el día a día y también para los momentos especiales:
- Barbacoa en azotea con parrillero y expansión exterior
- Espacios comunes equipados para reuniones y eventos
- Seguridad y monitoreo 24 horas
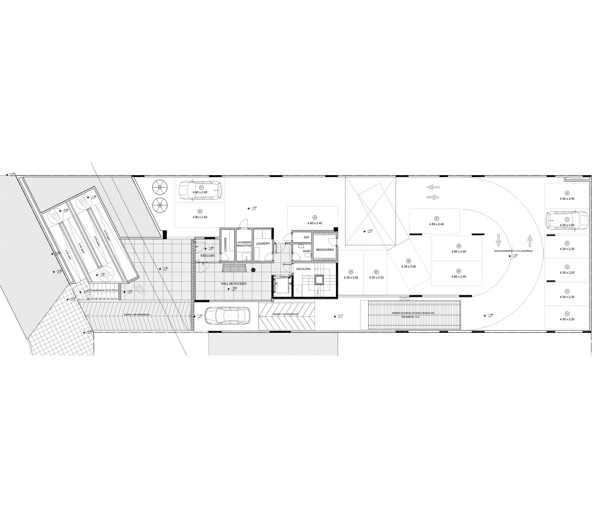
- Laundry y lavadero de mascotas
- Lockers para paquetería
- Garajes con previsión para carga eléctrica
Un proyecto pensado para vivir, pero también para invertir con respaldo, en una ubicación que mantiene su valor y proyección en el tiempo.
Monoambiente desde 128.960usd
1 Dormitorio desde 168.000usd
UNIDADES EN VENTA DESDE USD 128.960 *
CONTACTARUNIDADES
Haz clic en una torre para ver más información sobre las unidades.